1042 1st Street NEHickory, NC 28601
Due to the health concerns created by Coronavirus we are offering personal 1-1 online video walkthough tours where possible.




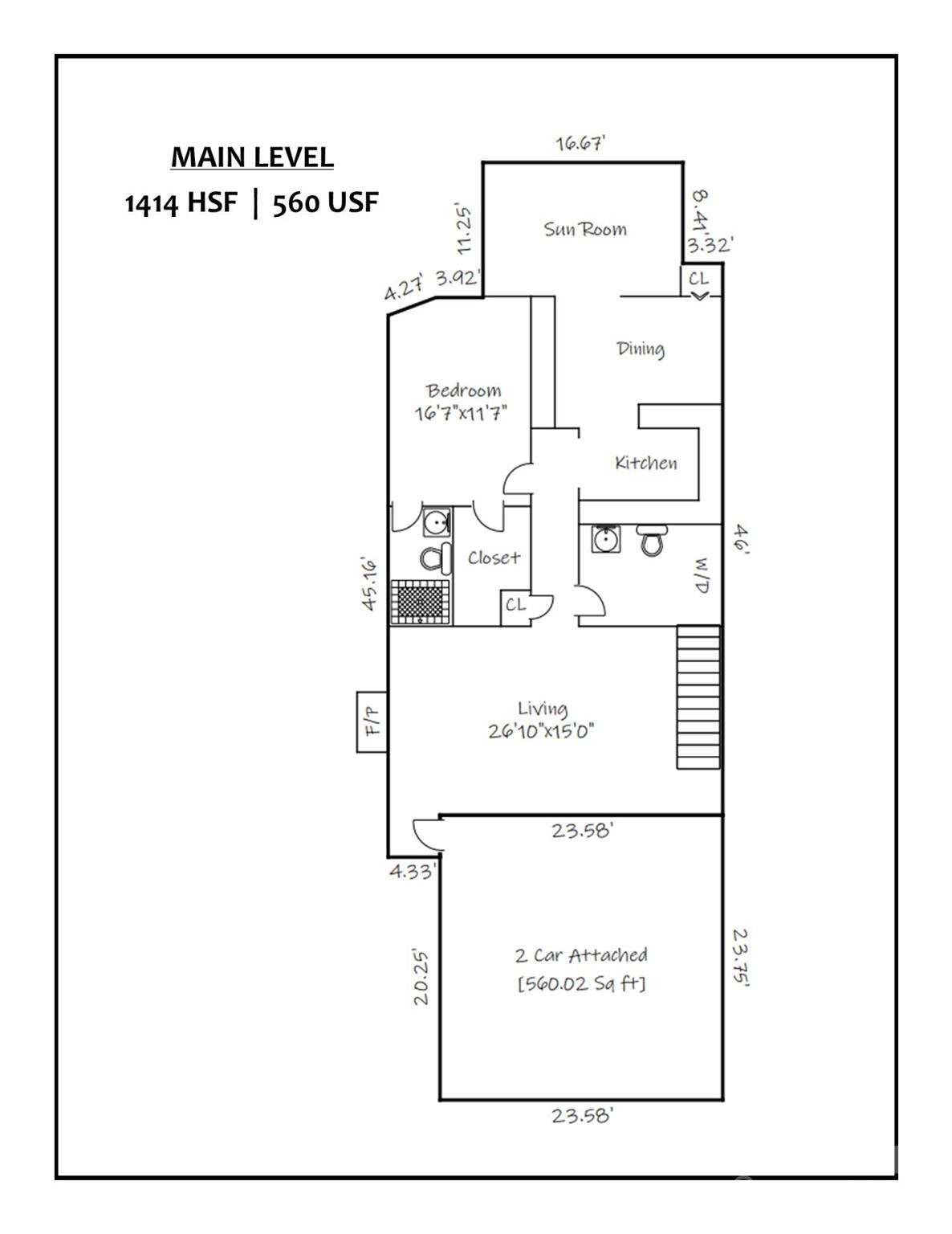
Don’t miss this beautifully updated 1.5-story townhome in a prime NW Hickory location! This move-in ready home features 3 bedrooms, 2.5 baths, and a desirable main-level primary suite with a large walk-in closet. The interior is freshly painted and showcases new LVP flooring, a vaulted shiplap ceiling, a cozy living room fireplace with gas logs, and main-level laundry. The stunning kitchen offers abundant counterspace, granite countertops, a farmhouse sink, and a spacious pantry. Recent updates include new Hardie board siding on the exterior, a tankless hot water heater, a bright sunroom addition, and stylishly updated bathrooms. Low maintenance luxury vinyl plank flooring will be appreciated on both levels! Enjoy outdoor living on the large paver patio overlooking the fully fenced backyard. A two-car garage on the main level, new HVAC, no HOA, and walking distance to local shops and restaurants make this home a rare find in an unbeatable NW Hickory location!
| 5 hours ago | Listing first seen on site | |
| 6 hours ago | Listing updated with changes from the MLS® |
Listings courtesy of Canopy MLS as distributed by MLS GRID
Some IDX listings have been excluded from this website. The data relating to real estate on this website derive in part from the Internet Data Exchange program. Brokers make an effort to deliver accurate information, but buyers should independently verify any information on which they will rely on a transaction. All properties are subject to prior sale, change or withdrawal. Neither the publisher of this website nor any listing broker shall be responsible for any typographical errors, misinformation, or misprints, and they shall be held totally harmless from any damages arising from reliance upon this data. This data is provided exclusively for consumers’ personal, non-commercial use and may not be used for any purpose other than to identify prospective properties they may be interested in purchasing. Based on information submitted to the MLS GRID as of 2025-11-19 02:50 AM UTC. All data is obtained from various sources and may not have been verified by broker or MLS GRID. Supplied Open House Information is subject to change without notice. All information should be independently reviewed and verified for accuracy. Properties may or may not be listed by the office/agent presenting the information. ©2025 Canopy MLS.
The Digital Millennium Copyright Act of 1998, 17 U.S.C. § 512 (the “DMCA”) provides recourse for copyright owners who believe that material appearing on the Internet infringes their rights under U.S. copyright law. If you believe in good faith that any content or material made available in connection with our website or services infringes your copyright, you (or your agent) may send us a notice requesting that the content or material be removed, or access to it blocked. Notices must be sent in writing by email to [email protected]. “The DMCA requires that your notice of alleged copyright infringement include the following information: (1) description of the copyrighted work that is the subject of claimed infringement; (2) description of the alleged infringing content and information sufficient to permit us to locate the content; (3) contact information for you, including your address, telephone number and email address; (4) a statement by you that you have a good faith belief that the content in the manner complained of is not authorized by the copyright owner, or its agent, or by the operation of any law; (5) a statement by you, signed under penalty of perjury, that the information in the notification is accurate and that you have the authority to enforce the copyrights that are claimed to be infringed; and (6) a physical or electronic signature of the copyright owner or a person authorized to act on the copyright owner’s behalf. Failure to include all of the above information may result in the delay of the processing of your complaint.
Last checked - 2025-11-19 02:50 AM UTC

Did you know? You can invite friends and family to your search. They can join your search, rate and discuss listings with you.